
地址:河南省周口市川匯區銀珠大道周口一高南100米
手機:13033969998
熱線:0394-8595585
信箱:455329348@qq.com
網址:m.allda.cn
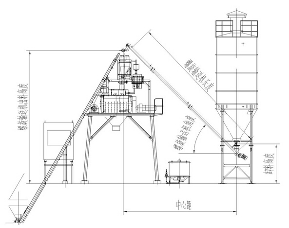
水泥倉根據不同的需求有不同的規格,不同規格水泥倉的尺寸都有所不同,而螺旋輸送機作為水泥倉的配套設備,兩者在安裝時都需要相互配合。那么水泥倉和螺旋輸送機在安裝時應該如何配合呢?不同規格的水泥倉應該如何選擇螺旋輸送機?

其實在購買水泥倉或者水泥罐時就應該考慮其尺寸是否和其配套的設備相符合,如上圖所示:
在選擇螺旋輸送機時應該參考一下幾點:
1.根據工藝要求的輸送量確定螺旋輸送機的型號規格。
2.根據工藝要求不同選擇合適的機型。水平或小傾角短距離輸送應選用水平慢速(LSS型)螺旋輸送機;高度不大的垂直或大傾角輸送,則應選用垂直快速(LSL型)螺旋輸送機。
3.根據被輸送物料性質不同確定螺旋葉片形式。輸送小麥、稻谷等散落性較好的物料時應選用滿面式葉片;輸送油料類粘性大、易粘結的物料時,為了防止堵塞,應選用帶式葉片。應注意,輸送原糧類和大米等物料,為了防止物料被破碎,一般不選用螺旋輸送機。
4.根據工藝設備的布置要求確定螺旋葉片的旋向、螺旋軸的轉向及螺旋體的組合。輸送機頭、尾端(進卸料端)位置確定后,物料的輸送方向即確定,螺旋葉片旋向和軸轉向必須符合要求;如需中間或兩端卸料,則應采用旋向不同的葉片組合成一個螺旋體。
在安裝時應該明白一下情況:

螺旋輸送機本體包括頭部軸承、尾部軸承、螺旋軸、外管、觀察口等幾個部分。馭動裝置由電機、減速器、聯軸器等組成。大傾角螺旋輸送機傾斜安裝角度一般為4°左右、長度一般不超過8米。為了避免螺旋軸過分彎曲導致與外管摩擦,螺旋軸中部要加支承,還應進行繞度校核。中問支承是為減小螺旋輸送軸的徑向繞度而設置,這個部位工作條件惡劣。由于螺旋葉片在中間支承處間斷,所以支承沿軸線方向的長度及橫向尺寸應盡量減小,以防止物料在此處堵塞。這里的支承可采用支座軸承或法蘭支座等形式。
螺旋輸送機各懸掛軸承應可靠地支承連接軸,不得使螺旋卡住或壓彎。懸掛軸承應安裝在連接軸的中心點,其端面距兩螺旋管軸端面的間隙應大于10mm 。為了調整機殼和螺旋之間長度的累計誤差,安裝時允許在各機殼的凸緣間加墊。驅動裝置減速器低速軸的中心高與螺旋輸送機的中心高相差過大時,可借墊片來調整驅動裝置的高度。空載試車時,如發現軸承有漏油現象,應拆下軸承,調整密封圈內彈簧的松緊,直至不漏油為止。空載試車時各軸承的溫升不應超過20 ℃ ;如溫升過高,則表明懸掛軸承的位置安裝不當,產生了連接軸的卡住現象。負載試車時,各軸承的溫升不應超過30℃ 。
錦榮倉儲設備有限公司專業水泥倉、水泥罐定做。聯系電話:13033969998