
地址:河南省周口市川匯區銀珠大道周口一高南100米
手機:13033969998
熱線:0394-8595585
信箱:455329348@qq.com
網址:m.allda.cn
一些客戶在購買散裝水泥罐時,對水泥灌規格尺寸還不是很了解,不知道100噸水泥罐、200噸水泥罐代表什么意思。錦榮倉儲水泥罐生產廠家為您介紹。
水泥罐容量如何計算?
水泥罐規格有100噸、200噸、300噸的,不同規格的水泥罐容量不一樣。水泥的容重是指水泥在自然狀態下(包括空隙)單位體積的質量。以千克/升表示。水泥的容重可分為松散狀態下的容重和緊密狀態下的容重兩種。水泥松散狀態下的容重一般在0.90~1.30千克/升范圍內。可根據自己實際情況選定需要的散裝水泥罐型號,通常有DX-50T、DX-80T、DX-100T、DX-150T、DX-200T等規格。
散裝水泥罐規格尺寸如何選?
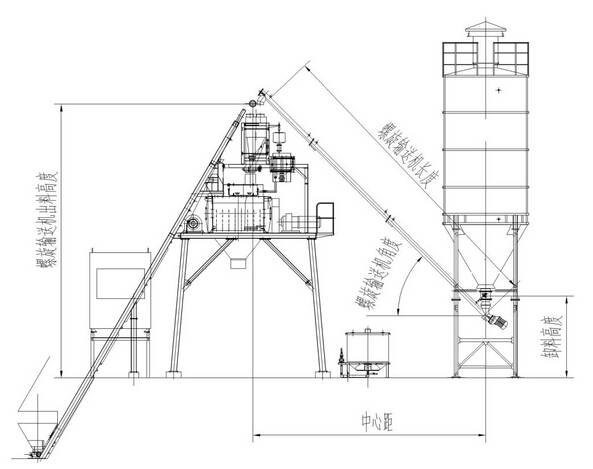
根據施工要求,確定散裝水泥罐的卸料高度(如:下料高度3.8米)及相關配件(如阻旋式料位計、震動除塵器、電子破拱器等)。
散裝水泥罐卸料高度計算。散裝水泥罐的卸料高度指水泥罐的下料口距基礎零平面的垂直距離。卸料高度計算需根據攪拌機位置、高度、水泥罐與攪拌機中心距及螺旋輸送機長度、角度來確定。一般的,螺旋輸送機常規出廠長度為6M、9M、12M三種,角度一般在30~60度為佳。通過簡單的數學計算方可得出散裝水泥罐卸料高度。

散裝水泥罐價格如何選?
散裝水泥罐價格和水泥罐規格尺寸有很大的關系,錦榮倉儲水泥罐規格主要有100噸、150噸、200噸、300噸等多種規格,原材料采用優質鋼材,我們的水泥罐廠家直銷,中間省去很多費用,讓您以最低的價格買到最優質的水泥罐產品。水泥罐價格咨詢13033969998!